
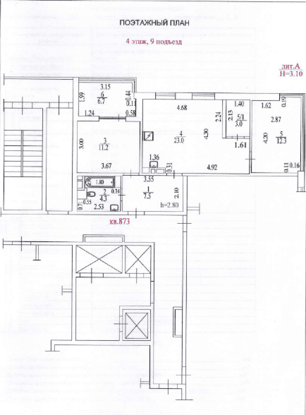
Перераспределение коридора и жилой зоны
Официально согласованная перепланировка с финальным актом межведомственной комиссии и наглядной схемой изменений.
Собрали каталог реальных сценариев перепланировки в стилистике текущего сайта: можно быстро отфильтровать кейсы, открыть нужный проект и увидеть финальный результат, планировку и пример итогового пакета документов.
Найдено проектов: 4
Открыть кейс с актом согласования
Официально согласованная перепланировка с финальным актом межведомственной комиссии и наглядной схемой изменений.

Демонтаж подоконного блока, утепление лоджии и перенос радиатора с оформленным итоговым результатом.

Совмещённый санузел перенесён в коридорную часть объекта без замечаний со стороны контролирующих органов.

Перенос мокрой зоны кухни в коридор позволил получить дополнительную спальню и сохранить согласуемость решения.
Каталог показывает направление и формат результата. Для конкретного адреса и дома всё равно проверяем ограничения отдельно.